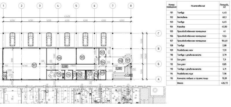
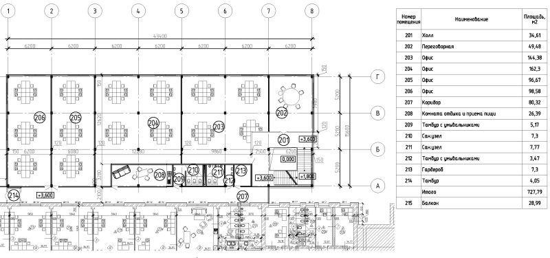
Новый административно-бытовой комплекс – расширение / Extension of the administrative building
Vitebsky Prospect, St. Petersburg / Витебский проспект, Санкт-Петербург





The old warehouse is scheduled for demolition / Старое складское здание подлежит сносу


© Architect – Reshetnikova Tatiana / Архитектор – Решетникова Татьяна / CEO – Bogatyrev Sergey / Гип – Богатырев Сергей